Terreno edificabile con magazzino in vendita a pizzolungo

codice 045VA1652
100.000 €
Vani 2 Bagni 1 Superfice 1280mq
2 1 1280mq
100.000 €

Caratteristiche

Codice 045VA1652
Prezzo 100.000 €
Tipo Contratto Vendita
Superfice 1280mq
Città Erice (TP)
Tip. Immobile Terreno Edificabile
Condizioni Abitabile
Vani 2
Cucina Non presente
Bagni 1
Classe Energetica G
Zona immobiliare Mare
Ascensore No
Soggiorno No
Ripostiglio No
Lavanderia No
Mansarda No
Soffitta No
Cantina No
Terrazzo No
Balcone No
Poggiolo No
Ingresso indipendente Si
Anno di costruzione 1960
Stile Architettonico Qualsiasi
Giardino Privato
Piscina No
Pannelli fotovoltaici No
Pannelli solari No
Impianto Geotermico No
Antincendio No
Mostra di più

Descrizione

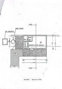
Terreno edificabile in via Simone, nella zona residenziale di Pizzolungo, ideale per la realizzazione di una villetta singola con spazi esterni comodi e funzionali. Descrizione del lotto In una tranquilla zona residenziale di Pizzolungo, proponiamo in vendita un terreno edificabile di circa 1.280 mq, caratterizzato da una conformazione regolare che si presta alla progettazione di una villetta indipendente. Il lotto dispone di ben due ingressi, caratteristica che offre maggiore flessibilità nella distribuzione degli spazi, nell’accesso carraio e nella futura suddivisione delle aree esterne. Magazzino annesso All’interno della proprietà è presente un magazzino di circa 30 mq, utile come deposito attrezzi, locale tecnico o futura dependance di servizio. Questa pertinenza rappresenta un valore aggiunto in fase progettuale, perché consente di integrare da subito uno spazio coperto a supporto della futura abitazione. Contesto e potenzialità Pizzolungo è una frazione residenziale molto richiesta, a pochi minuti da Trapani ed Erice, apprezzata per la vicinanza al mare e per il contesto di villette e case indipendenti. Il lotto, per estensione e posizione, si presta alla realizzazione di una villetta singola con giardino, area parcheggio interna e zone relax all’aperto, ideale per chi cerca tranquillità senza rinunciare ai servizi. Destinazione ideale La proprietà è perfetta per chi desidera progettare la propria casa su misura, con spazi esterni vivibili e la possibilità di valorizzare gli accessi doppi per ospiti o per un eventuale utilizzo misto residenziale/pertinenziale. Una soluzione rara in zona, che unisce metratura generosa, magazzino già esistente e posizione residenziale strategica, ideale per un progetto di villa unifamiliare moderna
Mostra di più

Altri immobili proposti dall’agenzia

condividi su: