Appartamento con garage e posto auto in vendita a trapani

codice 045VA1613
168.000 €
Vani 6 Bagni 2 Superfice 150mq
6 2 150mq
168.000 €

Caratteristiche

Codice 045VA1613
Prezzo 168.000 €
Tipo Contratto Vendita
Superfice 150mq
Città Trapani (TP)
Tip. Immobile Appartamento
Condizioni Abitabile
Vani 6
Cucina Cucina Soggiorno
Bagni 2
Classe Energetica F
Zona immobiliare Residenziale
Numero di piani 7
Piano 2
Ascensore Si
Spese Condom. 52
Camere da letto 3
Soggiorno Si
Ripostiglio Si
Lavanderia No
Mansarda No
Soffitta No
Cantina No
Terrazzo No
Balcone Si
Poggiolo No
Ingresso indipendente No
Box Auto/Garage Singolo
Anno di costruzione 1987
Stile Architettonico Qualsiasi
Giardino Comune
Piscina No
Aria Condizionata Presente
Riscaldamento Autonomo
Pannelli fotovoltaici No
Pannelli solari No
Impianto Geotermico No
Antincendio No
Mostra di più

Descrizione

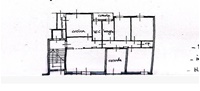
Ampio appartamento con garage e posto auto su Via Virgilio (Trapani) Descrizione In posizione strategica su Via Virgilio, Tecnoaffari propone in vendita un luminoso appartamento al secondo piano di circa 150 mq di una palazzina signorile con ascensore e sette piani totali. L'ingresso conduce direttamente ad un ampio salone, perfetto per ricevere ospiti o rilassarsi in famiglia. Il soggiorno si integra con la cucina, creando uno spazio conviviale e pratico. L'immobile dispone di due bagni, di cui uno completamente ristrutturato, uno studio, due confortevoli camerette, una spaziosa camera da letto matrimoniale e un comodo riposto per ogni esigenza di spazio aggiuntivo. Il riscaldamento autonomo garantisce comfort e autonomia in ogni stagione. Completa la proprietà il garage di 20 mq e il posto auto condominiale, per la massima praticità e sicurezza. La zona è servita da negozi, scuole e tutti i principali servizi, rendendo l'appartamento perfetto per famiglie che cercano comodità e centralità. Caratteristiche principali Ampia metratura e spazi ben distribuiti Garage privato e posto auto interno Ascensore e contesto condominiale signorile Bagno ristrutturato recentemente Riscaldamento autonomo Ottima posizione vicina a servizi e collegamenti
Mostra di più

Altri immobili proposti dall’agenzia

condividi su: